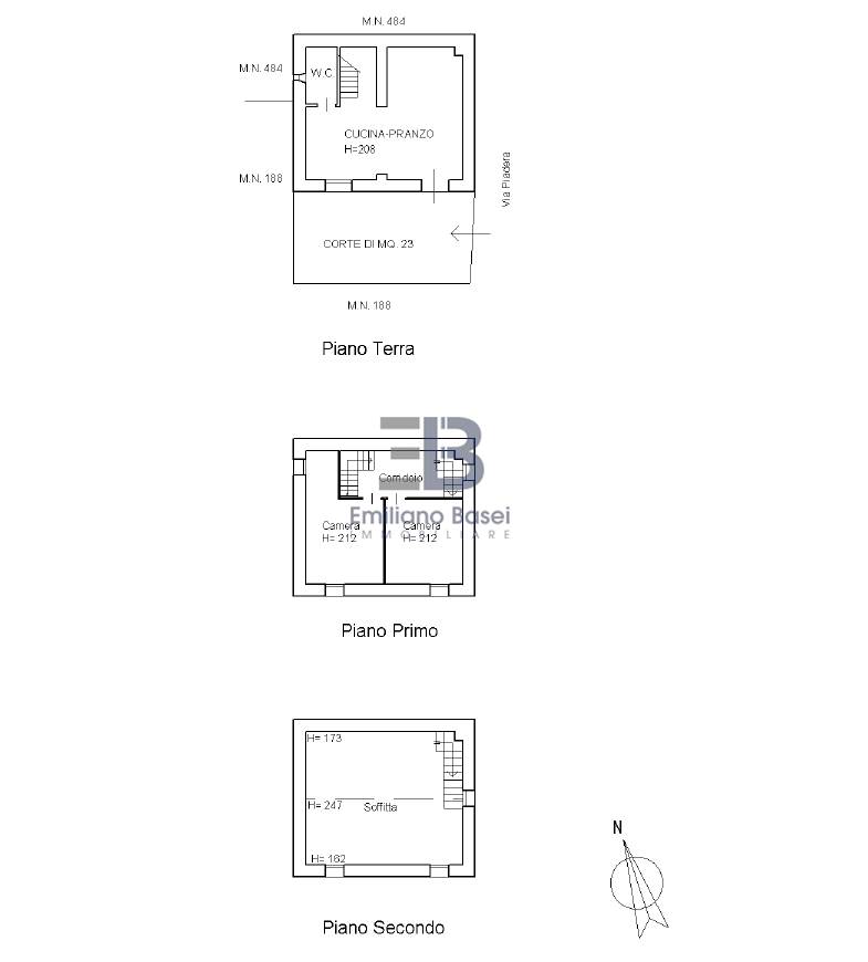
Graziosa baita/rustico in pietra in zona panoramica a pochi minuti da Vittorio Veneto. L'edificio sviluppato su 3 livelli, in pietra tipica dei luoghi si compone di piano terra con soggiorno dotato di caminetto, cucinino e bagno. Al primo piano due camere, e al piano secondo mansarda.
Dispone di allacciamento all'acquedotto e alla rete elettrica.
Ha una vista incredibile sulla Città di Vittorio Veneto, raggiungibile in pochi minuti d'auto. La strada asfaltata, costantemente manutentata, garantisce l'accesso tutti i mesi dell'anno.
Sul lato opposto della strada, congiuntamente vendiamo appezzamento di terreno, attualmente a bosco misto, curato e recintato, della superficie di circa 2500 Mq.
Nelle vicinanze attività agrituristiche o l'osservatorio astronomico di Vittorio Veneto. IDEALE per trascorrere le giornate estive al fresco di Piadera, o per i weekend tra passeggiate immersi nel bosco.